Ваш регион:
0

+7 (800) 350-85-65*

*Звонок по РФ бесплатный

info+lipetsk@unilos-astra.com

создаем гармонию

Септик Астра 5 Лонг

Выгодная цена: 159 630 руб. -15%

Цена: по запросу

Акция!
Цена под ключ: Посмотреть смету

В корзину
Астра 5 Лонг

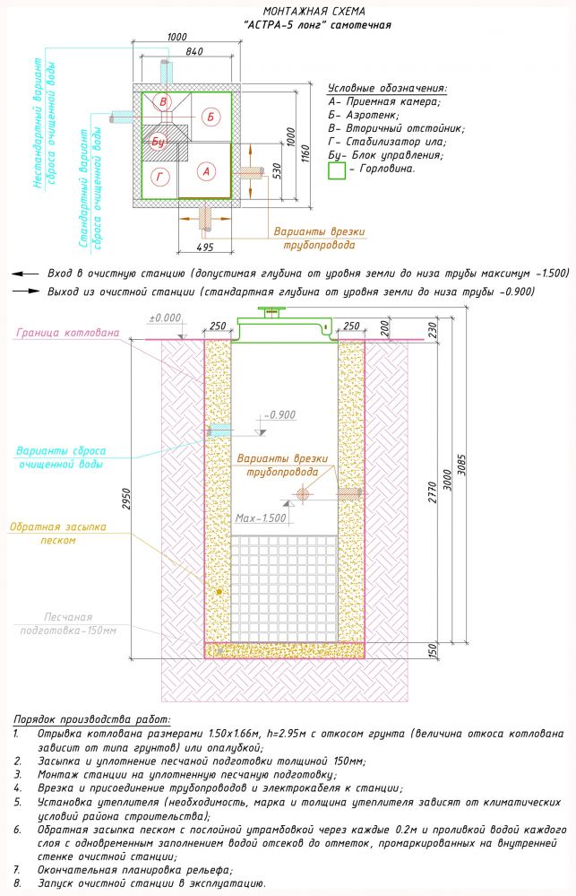
Технические характеристики Астра 5 Лонг

Количество пользователей: 5

Залповый сброс: 250 л

Объем переработки: 1 м3/сут

Удлинен. корпус: есть

Насос для откачки: нет (самотечный сброс)

Глубина врезки подвод. магистрали: 101 - 150 см

Глубина залегания: 150 см

Высота: 3.08 м

Длина: 1.16 м

Ширина: 1 м

Вес: 300 кг

человек х5

краны х3

туалеты х2

души/ванны х1

Наши услуги

Замер и смета

Замер и смета

Доставка

Доставка

Монтаж и запуск

Монтаж и запуск

Обслуживание и ремонт

Обслуживание
и ремонт

Консервация на зиму

Консервация на зиму

48 часов от звонка до установки

48 часов от звонка
до установки

Подробнее об Астра 5 Лонг

Инновационные инженерные решения позволяют существенно повышать качество жизни граждан, решать самые разные вопросы, в том числе в индивидуальном строительстве. Одним из таких эффективных решений стал Септик Астра 5 long – автономная станция очистки канализационных вод.
Ни один большой и красивый загородный дом не может обойтись без ряда коммуникаций: электричество, холодное и горячее водоснабжение, водотведение. Времена использования выгребных ям, бетонных колец, в качестве накопителей стоков и последующего их удаления с помощью ассенизаторской машины, хочется верить, ушли в далекое прошлое. Септик – автономная станция очистки бытовых стоков – постое, эффективное, надежное устройство, позволяющее решать проблему удаления стоков с максимальной эффективностью и минимальными финансовыми расходами.

С помощью компактного, недорогого, простого в работе септика решается сразу несколько задач:

  • удаление стоков;
  • их очистка;
  • отсутствие необходимости регулярной откачки накопившихся канализационных масс;
  • чистота на окружающей территории;
  • экологичность, полное отсутствие запахов.

Устройство и принцип работы

Согласно предоставляемой в комплекте с септиком Юнилос Астра 5 long документации, очистка стоков в устройстве осуществляется максимально полно. На выходе из установки вода имеет прозрачный цвет, характеризуется полным отсутствием запахов и даже (после дополнительного обеззараживания, например – хлорирования), может применяться в качестве технической жидкости, для полива деревьев растений, мытья садовой мебели и т.п. Сброс очищенной воды в грунт не наносит никакого экологического вреда окружающей среде, полностью соответствует установленным нормам и стандартам качества организации загородной жизни.
Септик Астра 5 long имеет компактные размеры (длина/ширина/высота = 1,04/2,00/2,36 метра), весит всего 220 кг. Так что для транспортировки и производства монтажа, не потребуется использование дорогостоящей специальной техники и дополнительного оборудования. Снаружи септик имеет специальные ребра жесткости, которые, в паре с высококачественным полипропиленом, используемым для изготовления корпуса установки, обеспечивает необходимый запас прочности, устойчивости к внешним механическим нагрузкам.

Возможности применения

Септик Астра 5 long способен обеспечить свободное пользование канализацией до 5 человек одновременно, проживающих на даче, в загородном доме. Увеличенные в высоту габаритные размеры септика позволяют обеспечить эффективный прием залпового сброса стоков в объеме 250л. Суточная норма приема стоков, при которой установка Юнилос Астра 5 long обеспечит эффективную очистку канализационных вод – 1 м³. Этого объема достаточно, чтобы можно было принимать ванну или душ, пользоваться 1-2 раковинами, а также эксплуатировать бытовую технику – стиральную, посудомоечную машины.

Бак септика имеет прямоугольную форму. Эффективную очистку стоков обеспечивает уникальная конструкция, внутреннее устройство предусматривает наличие следующих основных отсеков:
1) Приемный.
2) Бак аэрации.
3) Отстойник вторичного типа.
4) Стабилизатор ила.

Очистка в септике Астра 5 long производится по той же схеме, что и у большинства аналогичных моделей. Стоки по проложенным трубопроводам направляются в септик. Здесь они попадают и накапливаются в приемном отсеке. Происходит тщательное перемешивание, разделение крупных взвесей на мельчайшие фракции. Далее, подготовленная однородная масса направляется в аэротенк. Здесь под воздействием активного ила, насыщенного кислородом, происходит перемешивание, активные компоненты ила нейтрализуют органические вещества, находящиеся в сточных массах. Далее жидкость перемещается в отстойник. Здесь ил оседает на дно, а очищенные, осветленные водные массы отстаиваются. Далее активный ил возвращается в аэротенк, а вода направляется по отводящим трубам выводится из септика.

Монтажные схемы Астра 5 Лонг

Почему выбирают нашу компанию?

10 лет гарантии

Работаем без предоплаты

Оплата за септик/автономную канализацию - при получении.

Не бросим Вас после продажи

Вот уже 11 лет мы не только ставим септики, но и обслуживаем их. Знаем станции вдоль и поперек. Как они устроены и чего от них ждать. Многие "установщики" вообще не понимают, что продают и как оно будет дальше работать.

Экономим Вам деньги

Мы работаем БЕЗ наценок на продукцию.

Делаем дополнительные работы

Вам требуется что-то ещё? Занимаемся также: подводом воды, дренажом, ливневкой, водопроводом, отоплением и другими строительными работами.

Наши менеджеры помогут быстро и правильно подобрать оптимальный вариант септика

Сертификаты и экспертное заключение

Видеогалерея

Остались вопросы или нужна консультация? Наши менеджеры с радостью помогут Вам

Как мы работаем

Оформление заявки

Бесплатный выезд инженера

Согласование плана и подписание договора

Проведение монтажных работ

Отличный результат